Probleme Escalier/PAC

Répondre
jackgege
Assidu
Assidu
Messages : 84
Enregistré le : lun. oct. 22, 2007 3:31 pm
Localisation : Ales 30
Travaillez-vous dans le domaine des énergies ou du chauffage : Non

Probleme Escalier/PAC

Message par jackgege »

Salut à tous,

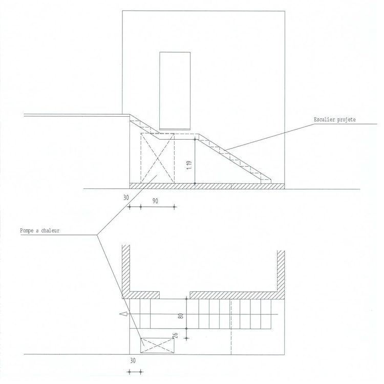
J'ouvre ce nouveau sujet pour une histoire d'esclier et de PAC.
Je ne sais pas si il est tres bon de placer un escalier aussi prés de celle-ci, et comme les images parlent plus que les mots, voici un petit croquis
Image
Comme indiqué, l'escalier serai à 26 cm de l'evaporateur.
Cet escalier serai je pense en metal sans contre marches et les maches en caillebotti métal perforé. Moins lourd que le béton, et plus respirant.
Dois je envisager un déplacement de ma PAC :evil: , ou bien est ce possible et sans souci pour la demoiselle :? .
Merci pour vos avis.
Si besoin d'infos en plus, y a qu'à demander :lol:
Jack :wink:
PAC DAIKIN/AJTECH 125 sur PC 145m²
Maison de Octobre 2006
Avatar du membre
Georges32
Pro de la thermo
Pro de la thermo
Messages : 2474
Enregistré le : sam. déc. 16, 2006 10:28 pm
Localisation : Sud Ouest ( Gers )
Travaillez-vous dans le domaine des énergies ou du chauffage : Non

Message par Georges32 »

Bonsoir. Si le soufflage est horizontal, il n'y a pas d'inconvénient, à condition qu'elle prenne l'air côté escalier, et qu'elle le rejette en face.
A + Georges32
Dans le Gers on n'a pas de pétrole, mais on a des idées ( et du foie gras )
Répondre

Retourner vers « AJTECH / ARKTEOS »